- MieteCHF 765
- Fläche36
«Ihr neuer Arbeitsplatz an zentraler Lage! - erster Monat mietzinsfrei!»
Lage
Verfügbarkeit
- Verfügbar
- nach Vereinbarung
Entspannt umziehen: Kostenlose Offerten für Umzug und Reinigung
Kosten
- Nettomiete
- CHF 655
- Nebenkosten
- CHF 110
- Miete
- CHF 765
Bessere Chancen mit SwissCaution: Mietkautionsbescheinigung kostenlos beantragen
Eckdaten
- Etage
- 4. Stock
- Fläche
- 36 m²
- Nutzfläche
- 36 m²
- Baujahr
- 1950
- Letzte Renovation
- 1995
Beschreibung
Das Haus ist saniert und befindet sich an einer top Lage, die Bushaltestellen sind direkt vor dem Haus, die Innenstadt und der Hauptbahnhof sind in wenigen Gehminuten erreichbar.
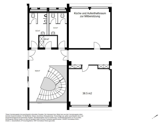
Auf dieser Etage steht Ihnen eine komplette Bürofläche zur Verfügung.
- Eine Küche mit Aufenthaltsraum
- 1x Grossraumbüro und 1x weiterer in sich abgeschlossener Raum
- Toilettenanlagen stehen zur Mitbenutzung auf dem gleichen Stockwerk
- Sehr helle Räume mit grossen Fensternflächen
- Lift vorhanden
Die Liegenschaft ist in einem erstklassigen Zustand und sämtliche Installationen befinden sich auf dem absolut neusten Stand der Technik!
Der Eingangsbereich und das Treppenhaus sind ausserordentlich grosszügig und einladend. Nutzen Sie die Gelegenheit, Ihren Mitarbeitern, Geschäftspartnern und Kunden eine stattliches Geschäftsdomizil zu bieten und profitieren Sie von den interessanten Mietkonditionen.
Es besteht die Möglichkeit, einen Einstellplatz anzumieten.
Eine unverbindliche Besichtigung lohnt sich bestimmt - wir freuen uns auf Ihre Kontaktaufnahme.
Inserat
- Inserate-Nr
- 7542914
- Referenz
- 13589
Ähnlich

CHF 765
Büro
Teufener Strasse 25
9000 St. Gallen SG

CHF 767
Lager
Bahnhofstrasse 1
6460 Altdorf UR

CHF 762
Lager
Voie-Creuse 3-5/Masaryk 1-3
1202 Genève GE











