- MieteCHF 240
- Fläche80
«Büro»
Lage
Verfügbarkeit
- Verfügbar
- sofort
Entspannt umziehen: Kostenlose Offerten für Umzug und Reinigung
Kosten
- Nettomiete
- CHF 213
- Nebenkosten
- CHF 27
- Miete
- CHF 240 jährlich/m2
Bessere Chancen mit SwissCaution: Mietkautionsbescheinigung kostenlos beantragen
Eckdaten
- Etage
- 2. Stock
- Fläche
- 80 m²
Ausstattung
- Küche
- Glaskeramik
- Geschirrspüler
- Parkmöglichkeiten
- Parkplatz
- Tiefgarage
- Sonstiges
- Lift
- Rollstuhlgängig
Beschreibung
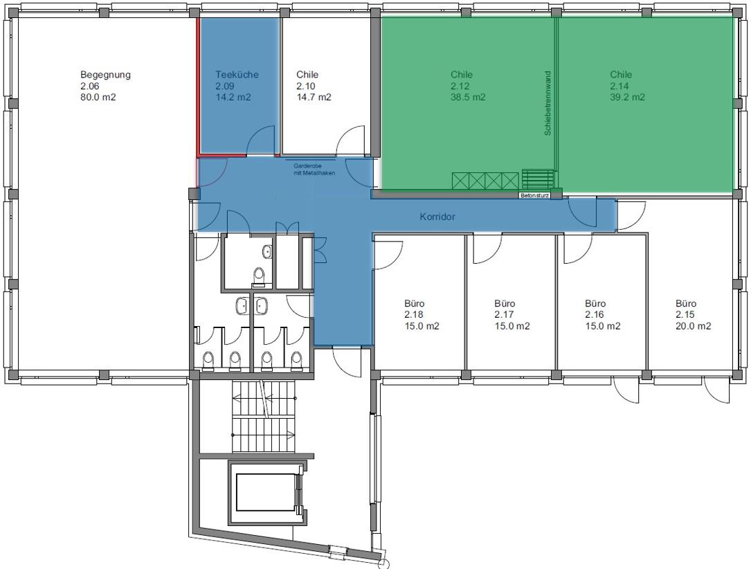
In zentraler Lage in Winterthur am Rande des Industriequartiers Grüze steht das Zentrum Grüze. Direkt vor der Tür gibt es drei Bushaltestellen mit drei Buslinien. Nur wenige Gehminuten entfernt befindet sich der Bahnhof Winterthur-Grüze, welcher in nächster Zukunft massiv ausgebaut wird.Die Liegenschaft hat einen Aussenparkplatz mit 50 kostenpflichtigen Parkfeldern für Besuchende, Mitarbeitende, Kunden und Kundinnen. Parkfelder können auf Wunsch (falls freie vorhanden) mit eingeschränkter Parkzeit dauerhaft gemietet werden.Sitzungs- und Schulungsräume im EG und 1. OG können punktuell dazu gemietet werden.Zu mietende Fläche:Der moderne und praktische Raum kann als Schulungsraum oder als Büro benutzt werden. Dieser befindet sich im 2. Obergeschoss.Der Raum ist 80m2 gross. Dieser kann auch unterteilt werden in 2x 40m2Zusätzlich kann noch ein Büro mit 20m2 dazu gemietet werden. Link:Eine Gemeinschaftsküche kann mitbenutzt werden.
Inserat
- Inserate-Nr
- 7537529
Ähnlich
CHF 240
Büro
Allée des Cèdres 23
1022 Chavannes-près-Renens VD

CHF 240
Ladenfläche
Poststrasse 4
9500 Wil SG

CHF 240
Büro
Wambisterstrasse 1
5412 Gebenstorf AG





