- MieteCHF 260
- Fläche120
«Büro»
Lage
- Adresse
- Soodring 33
8134 Adliswil ZH
Verfügbarkeit
- Verfügbar
- sofort
Entspannt umziehen: Kostenlose Offerten für Umzug und Reinigung
Kosten
- Miete
- CHF 260 jährlich/m2
Bessere Chancen mit SwissCaution: Mietkautionsbescheinigung kostenlos beantragen
Eckdaten
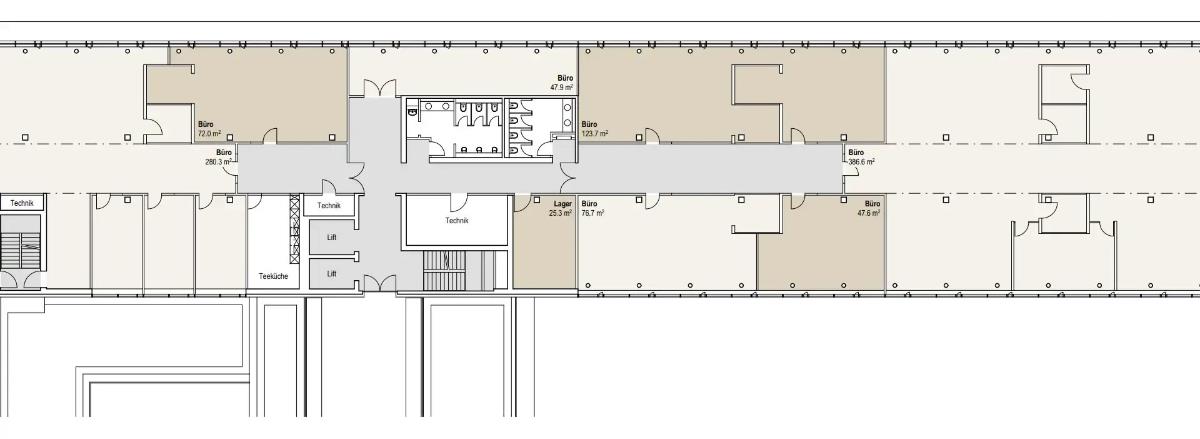
- Etage
- 4. Stock
- Fläche
- 120 m²
Beschreibung
Büroflächen zwischen 100 - 400 m²: hochwertig, nachhaltig und bezugsbereit! Ganz zentral in Adliswil, 500 Meter vom Bahnhof Sood Oberleimbach entfernt (15 Minuten nach Zürich), und in unmittelbarer Nähe zur Autobahnauffahrt, finden Sie unser Geschäftshaus «AGLAIA» am Soodring 33.Über mehrere Stockwerke erstrecken sich, in einem Minergie-Label zertifizierten Gebäude, diverse moderne und ausgebaute Büroflächen, welche sofort bezugsbereit sind. Mehr Plug-and-play geht nicht! Die Freiflächen auf dem Grundstück wurden mit viel Grün, Wasserflächen und Sitzplätzen ausgestattet. Auch die Dachterrasse lädt zum Verweilen ein.Für Ihre Mitarbeitenden und Kundschaft stehen gesamthaft über 200 Einstellhallenplätze sowie einige Aussenparkplätze zur Verfügung. Zudem trumpfen die bezugsbereiten Büroflächen mit folgenden Key Facts auf:– Lichtdurchflutete Büros mit Blick ins Grüne– EDV-Verkabelung über Bodendosen– Effiziente Deckenbeleuchtung– Thermokative Decken für angenehmes Raumklima– Ausgebaute Nasszelle– Teeküchen auf der EtageKonnte wir Sie überzeugen? Gerne zeigen wir Ihnen dieses Objekt und freuen uns auf Ihre Kontaktaufnahme.
Inserat
- Inserate-Nr
- 7507408
Ähnlich

CHF 260
Gewerbe
St. Gallerstr. 82
8400 Winterthur ZH
CHF 260
Gewerbe
Neuhausstrasse 32
4057 Basel BS

CHF 260
Lager
Zimmereiweg 7
4665 Oftringen AG






