- MieteCHF 35'000
- Fläche600
«Zentrale Lage. Höchstes Niveau. Neu ausgebaut.»
Lage
- Adresse
- Talstrasse 41
8001 Zürich ZH
Verfügbarkeit
- Verfügbar
- sofort
Entspannt umziehen: Kostenlose Offerten für Umzug und Reinigung
Kosten
- Miete
- CHF 35'000
Bessere Chancen mit SwissCaution: Mietkautionsbescheinigung kostenlos beantragen
Eckdaten
- Fläche
- 600 m²
- Nutzfläche
- 600 m²
Beschreibung
Zentrale Lage. Höchstes Niveau. Neu ausgebaut.
Ziehen Sie direkt in die ausgebauten Büroflächen ein.
Die Liegenschaft erwartet Sie an einer prominenten und äusserst attraktiven Lage im Herzen des Kreis 1, unmittelbar beim Paradeplatz. Die Talstrasse ist im Wandel, gegenüber entstehen neue Retailflächen beim Hauptsitz der UBS, diverse Gebäude werden aufgefrischt und es entsteht Platz für neue Brands und Konzepte.
Tauchen Sie ein, in die exklusive Nachbarschaft und profitieren Sie von herausragenden Verkehrsanbindungen sowie einer erstklassigen Infrastruktur.
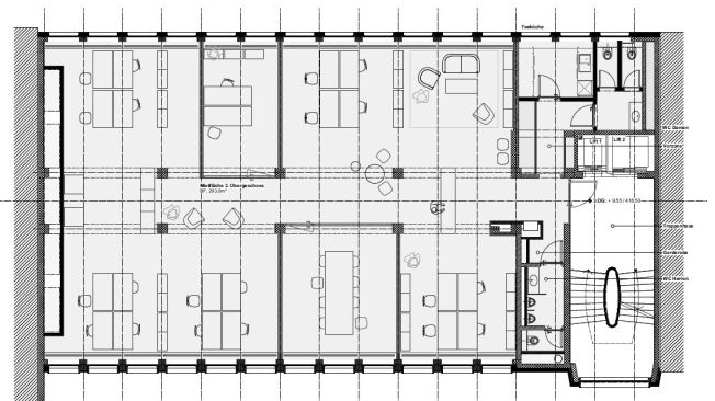
Im EG erwartet Sie eine visible Ausstellungs- oder Verkaufsfläche. In den Obergeschossen qualitativ hochwertige und vollausgebaute Büroflächen mit je 300 m², welche mit zwei Aufzügen erschlossen sind.
Obergeschosse: zeitlose Architektur!
Helle Räume mit grosszügigen Fensterfronten 1 Sitzungszimmer, 1 Einzelbüro vollausgebaut Hochwertiger Büroteppich Moderne Teeküche auf jeder Etage Lüftung und Kühlung Schallschutzdecken Elektroverteilung in der Brüstung mit Steckdosen Toiletten Damen / Herren in der Mietfläche Raumhöhe ca. 2.43 m IV WC zur Mietbenützung Parkplatz (aussen) und Lager können dazu gemietet werden.
Raumprogramm:
EG ca. 235 m² inkl. WC im 1. UG 6 m²
1. OG ca. 293 m² Office
2. OG ca. 293 m² Office
Für weitere Informationen oder einen unverbindlichen Besichtigungstermin stehen wir Ihnen gerne zur Verfügung. Wir freuen uns auf Ihre Kontaktaufnahme.
Ziehen Sie direkt in die ausgebauten Büroflächen ein.
Die Liegenschaft erwartet Sie an einer prominenten und äusserst attraktiven Lage im Herzen des Kreis 1, unmittelbar beim Paradeplatz. Die Talstrasse ist im Wandel, gegenüber entstehen neue Retailflächen beim Hauptsitz der UBS, diverse Gebäude werden aufgefrischt und es entsteht Platz für neue Brands und Konzepte.
Tauchen Sie ein, in die exklusive Nachbarschaft und profitieren Sie von herausragenden Verkehrsanbindungen sowie einer erstklassigen Infrastruktur.
Im EG erwartet Sie eine visible Ausstellungs- oder Verkaufsfläche. In den Obergeschossen qualitativ hochwertige und vollausgebaute Büroflächen mit je 300 m², welche mit zwei Aufzügen erschlossen sind.
Obergeschosse: zeitlose Architektur!
Raumprogramm:
EG ca. 235 m² inkl. WC im 1. UG 6 m²
1. OG ca. 293 m² Office
2. OG ca. 293 m² Office
Für weitere Informationen oder einen unverbindlichen Besichtigungstermin stehen wir Ihnen gerne zur Verfügung. Wir freuen uns auf Ihre Kontaktaufnahme.
Inserat
- Inserate-Nr
- 7370804
- Referenz
- 1647
Ähnlich

CHF 35'000
Büro
Neckarsulmstrasse 20
2540 Grenchen SO

CHF 35'117
Büro
2, route des Acacias
1227 Les Acacias GE

CHF 35'443
Büro
Klosterstrasse 40
8406 Winterthur ZH








