- MieteCHF 1'800
- Zimmer10.5
- Fläche300
«10-Zimmer-Einfamilienhaus / casa con 10 locali»
Lage
- Adresse
- 6772 Rodi-Fiesso TI
Verfügbarkeit
- Verfügbar
- sofort
Entspannt umziehen: Kostenlose Offerten für Umzug und Reinigung
Kosten
- Miete
- CHF 1'800
Bessere Chancen mit SwissCaution: Mietkautionsbescheinigung kostenlos beantragen
Eckdaten
- Zimmer
- 10.5
- Wohnfläche
- 300 m²
Beschreibung
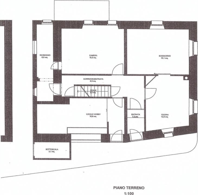
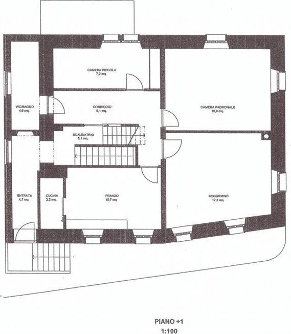
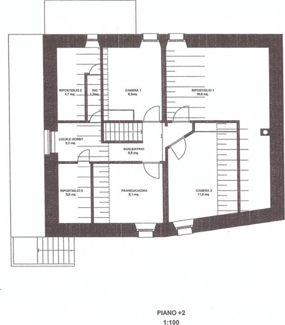
Regione: LeventinaLocalità: 6772 Rodì/Fiesso, Nucleo FiessoTipo dell’immobile: Casa con due appartamentiSuperficie abitabile: ca. 300 m2Anno di costruzione: ??Ristrutturazione interno: 2017Piani: 4Balcone: noPosteggi: comunali gratuitiLocali: 1 x 3 ½ nel piano terra e 1 x 7 ½ duplexBagno/WC: 2Riscaldamento: pelletsPavimentazione: parquetPosizione: centraleVista lago: noScuole: siPossibilità d’acquisti: siMezzi pubblici: siDistanza prossima città: 40 kmDistanza autostrada: 1 kmQuesta bifamiliare si trova in posizione soleggiata nel nucleo di Fiesso nel comune Prato/Rodì/Fiesso nell’alta Leventina.I’ edificio è ancora in buono stato. L’arredamento interno viene ristrutturato nel estate 2017. La casa ha 4 piani. Nel piano sottoterra si trovano due grandi cantine e due locali riscaldamento e lavanderia. Il piano terra consiste di un appartamento di 3 ½ locali. Nel primo e secondo piano con entrata separata si trova un appartamento duplex di 7 ½ locali. In inverno si può praticare lo sci sulle vicine piste di Airolo, Prato e Carì, oppure pattinare ad Ambrì.L’immobile è facilmente raggiungibile. Ci sono posteggi comunali gratuiti davanti la casa. Tramite autopostale si può raggiungere Airolo e Faido in pochi minuti. L’autostrada A2 a Quinto in distanza di 1 km. A Rodì ci sono un negozio e la scuola.Si può affittare la casa intera o gli appartamenti dal 1 ottobre 2017. Gli affitti sono:Fr. 1ґ800.-- per tutta la casaFr. 1ґ100.-- per l’appartamento duplexFr. 700.-- per l’appartamento di 3 ½ localiDieses 2-Familienhaus befindet sich an zentraler Lage in Rodi in der Zone Fiesso in der Leventina.Das Gebäude befindet sich noch in einem guten baulichen Zustand. Der Innenausbau wird vollständig erneuert und die Bezugsbereitschaft wird per 1. Oktober 2017 möglich sein. Im Kellergeschoss sind zwei grosse Kellerräume, die Waschküche und ein weiterer Raum eingebaut. Im Erdgeschoss befindet sich eine 3 ½-Zimmer-Wohnung. Das 1. und zweite Obergeschoss besteht aus einer 7 ½-Zimmer-Duplexwohnung. Die beiden Wohnungen sind miteinander verbunden, haben aber je einen eigenen Eingang und können so separat genutzt werden. Die Pläne sind beiliegend.Die Liegenschaft ist mit dem Auto gut erreichbar. Es befinden sich neben dem Haus Gratisparkplätze der Gemeinde. Bellinzona ist in 30 Fahrminuten und Locarno mit dem Lago Maggiore in ca. 40 Minuten erreichbar. Vor dem Haus ist die Postautohaltestelle mit Verbindung nach Airolo und Faido. Die Skigebiete in Airolo befinden sich in ca. 10km Entfernung. In Prato gibt es ebenfalls ein kleineres Skigebiet. Die Eishalle von Ambrì ist 3 km entfernt. Im Dorf gibt es Schulen und eine Einkaufsmöglichkeit.Es können das ganze Haus oder die einzelnen Wohnungen gemietet werden. Die Mieten sind:Fr. 1‘800.-- für das ganze HausFr. 1‘100.-- für die 7 ½-Zimmer-Duplex-WohnungFr. 700.-- für die 3 ½-Zimmer-Wohnung
Inserat
- Inserate-Nr
- 7223731
- Referenz
- 2597









