- MieteCHF 256
- Fläche20
«Büro»
Lage
Verfügbarkeit
- Verfügbar
- sofort
Entspannt umziehen: Kostenlose Offerten für Umzug und Reinigung
Kosten
- Nettomiete
- CHF 229
- Nebenkosten
- CHF 27
- Miete
- CHF 256 jährlich/m2
Bessere Chancen mit SwissCaution: Mietkautionsbescheinigung kostenlos beantragen
Eckdaten
- Etage
- 2. Stock
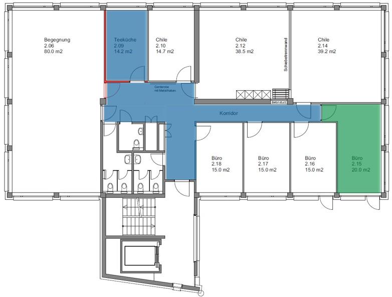
- Fläche
- 20 m²
Ausstattung
- Küche
- Glaskeramik
- Geschirrspüler
- Parkmöglichkeiten
- Parkplatz
- Tiefgarage
- Sonstiges
- Lift
- Rollstuhlgängig
Beschreibung
In zentraler Lage in Winterthur am Rande des Industriequartiers Grüze steht das Zentrum Grüze. Direkt vor der Tür gibt es drei Bushaltestellen mit drei Buslinien. Nur wenige Gehminuten entfernt befindet sich der Bahnhof Winterthur-Grüze, welcher in nächster Zukunft massiv ausgebaut wird.Die Liegenschaft hat einen Aussenparkplatz mit 50 kostenpflichtigen Parkfeldern für Besuchende, Mitarbeitende, Kunden und Kundinnen. Parkfelder können auf Wunsch (falls freie vorhanden) mit eingeschränkter Parkzeit dauerhaft gemietet werden.Sitzungs- und Schulungsräume im EG und 1. OG können punktuell dazu gemietet werden.Zu mietende Fläche:Das moderne und praktische Büro befindet sich im 2. Obergeschoss.Eine Gemeinschaftsküche kann mitbenutzt werden.Zusätzlich kann noch ein Schulungsraum oder ein grösseres Büro mit 80m2 oder 2x 40m2 dazu gemietet werden. Link:
Inserat
- Inserate-Nr
- 7212767
Ähnlich

CHF 256
Büro
Av. de Rumine 20
1005 Lausanne VD
CHF 255
Hobbyraum
Rue Collet 6-8
1800 Vevey VD

CHF 255
Hobbyraum
Rue Collet 6-8
1800 Vevey VD





