- MieteCHF 230
- Fläche23
«Nur so viel Büro mieten wie Sie brauchen und alle Vorteile geniessen!»
Lage
Verfügbarkeit
- Verfügbar
- nach Vereinbarung
Entspannt umziehen: Kostenlose Offerten für Umzug und Reinigung
Kosten
- Miete
- CHF 230 jährlich/m2
Bessere Chancen mit SwissCaution: Mietkautionsbescheinigung kostenlos beantragen
Eckdaten
- Etage
- 2. Stock
- Fläche
- 23 m²
- Nutzfläche
- 23 m²
- Baujahr
- 1997
Ausstattung
- Parkmöglichkeiten
- Garage
- Nachbarschaft
- Kinderfreundlich
- Sonstiges
- Lift
Beschreibung
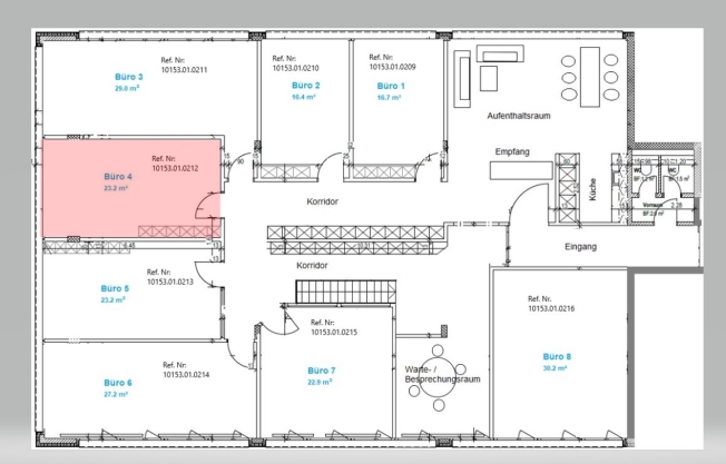
Die beruflichen Wünsche zu verwirklichen wird mit dem schönen, bezugsbereitem Büro und den vielen Vorteilen einfacher! Wir vermieten im Business Center Willisau das perfekte Büro mit 23.2 m2.VORTEIL BÜRO:- Heller Raum, Akkustikdecke vorhanden- Neuer Vinyl-Bodenbelag in Parkettoptik- Multimedia Anschluss, Wlan- Nebenkosten pauschal inkl. Reinigung (Allgemeinfläche)- Einstellplatz auf Wunsch verfügbar (CHF 120.-/ Mt)VORTEIL INFRASTRUKTUR ZUR MITBENÜTZUNG: - Teeküche mit Nespressomaschine und Mikrowelle - Möblierter Aufenthaltsbereich, Besprechungsecke, Empfang- Toiletten- Einbauschrank pro Büro inkl.- Kunden Parkplätze kostenlos vorhandenVORTEIL LAGE:- 3 Gehminuten zum Bahnhof- Gute Verkehrsanbindungen - Einkaufsmöglichkeiten im selben Gebäude- Diverse Dienstleistungsangebote im selben Gebäude (Physio, Coiffure, Ärzte ect.)MIETPREIS:- CHF 647.90 inkl. NK Pauschal und MWSTHaben wir Ihre Neugier geweckt? Wir freuen uns auf Ihre Anfrage!
Inserat
- Inserate-Nr
- 7048686
- Referenz
- 10153.01.0212
Ähnlich

CHF 230
Hobbyraum
Gislifluhstr. 2
5032 Aarau Rohr AG

CHF 230
Hobbyraum
Gislifluhstr. 2
5032 Aarau Rohr AG

CHF 230
Hobbyraum
Suhrhardweg 34
5033 Buchs AG







